Entwicklungen.
Immobilien.
KI-Beratung.
Palladio.
Infrastrukturbau.
RD2B.
kontakt.
Entwicklungen.
Immobilien.
KI-Beratung.
Palladio.
Infrastrukturbau.
RD2B.
kontakt.
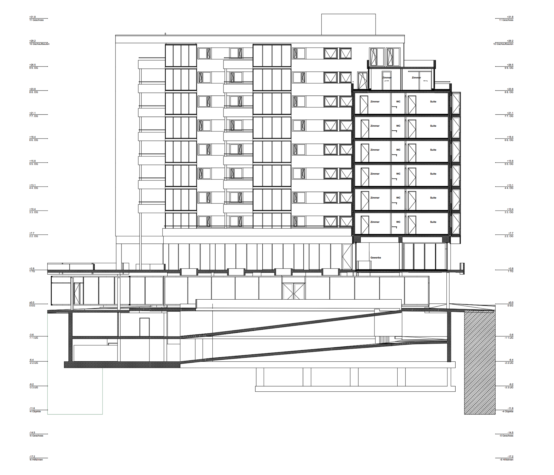
URBANSTREET
A55 - Olten
"Ein kleines Wunderland für das rechte Aareufer entsteht."
- Solothurner Zeitung
↑
Back to Top